AREA RISERVATA
Mail info@mediatorigroup.it Seguici su: facebook instagram linkedin
Mediatori Group
LA SCELTA GIUSTA PER LA TUA CASA
  • Vendita
  • Affitti
  • PERCHÉ SCEGLIERCI
  • Blog
  • Lavora con noi
  • Dove siamo
  • Agente immobiliare
  • Cookie e privacy
  • AREA RISERVATA
Percorso di ricerca Toscana LU Capannori

Bifamiliare o porzione

400 Mq | 9 locali

630.000,00 €

Descrizione immobile

"RIFERIMENTO ANNUNCIO 111"
IN ESCLUSIVA - Villa bifamiliare in vendita Capannori fraz. Segromigno in Piano confine con Lammari;
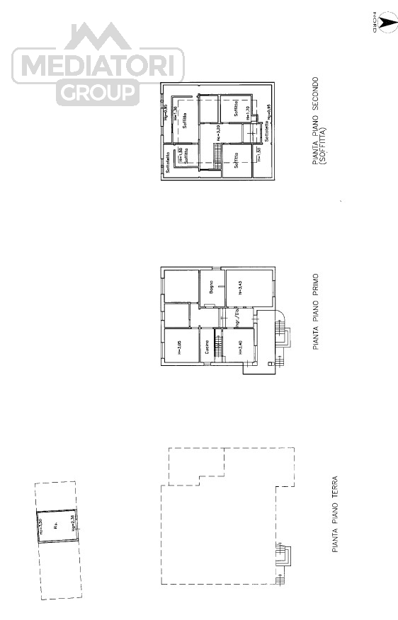
Nel Comune di Capannori, nella frazione di Segromigno in Piano al confine con Lammari, proponiamo in vendita in esclusiva una villa bifamiliare dalle metrature generose, ideale anche per due nuclei familiari grazie alla distribuzione su più livelli e alla doppia modalità di collegamento tra i piani. La proprietà è valorizzata da spazi esterni importanti: circa 500 mq di giardino servito da impianto di irrigazione e circa 900 mq di terreno, oltre a pannelli solari , 4 garage, comodi posti auto esterni e 2 accessi carrabili indipendenti.

Al piano terra l’ingresso avviene da una piacevole veranda che conduce alla cucina abitabile; la zona giorno offre due ampi saloni, una stanza con camino, una camera da letto e un bagno con doccia. Il primo piano, utilizzabile come unità indipendente, è raggiungibile sia tramite accesso esterno indipendente sia tramite scala interna, e si compone di cucina, sala da pranzo, tre camere da letto, un salone di grandi dimensioni e un bagno generoso con vasca idromassaggio. Dal primo piano, tramite scala interna, si accede infine alla soffitta abitabile, dove sono state ricavate tre ulteriori camere, un bagno e spazi perfetti per relax, studio o hobby.

SPAZI ESTERNI
Giardino circa 500 mq
Terreno circa 900 mq
Impianto di irrigazione
Pannelli solari
2 accessi carrabili indipendenti
4 garage
Posti auto esterni

DISTRIBUZIONE INTERNA

Piano Terra
Veranda d’ingresso
Cucina abitabile
2 ampi saloni
Stanza con camino
1 camera da letto
1 bagno con doccia

Primo Piano (accesso esterno indipendente + scala interna)
Ingresso/disimpegno
Cucina
Sala da pranzo
3 camere da letto
Ampio salone
1 bagno con vasca idromassaggio

Soffitta abitabile (da scala interna dal primo piano)
3 camere da letto
1 bagno
Spazi per relax / studio / hobby
NOTE
Per motivi di privacy la posizione indicata è puramente indicativa e non corrisponde all’esatta ubicazione dell’immobile.

Per richiedere ulteriori informazioni o concordare una visita chiamateci al numero 0583.936228, WhatsApp 349 680 9455 o inviate una email a lu3@mediatorigroup.it.

Dettagli
Riferimento annuncio: V342858
Regione: Toscana
Città: Capannori Segromigno In Piano
Provincia: Lucca
Superficie: 400 Mq
Contratto: Vendita
Locali: 9
Cucina abitabile: Sì
Soggiorno: Sì
Bagni: 3
Riscaldamento: Autonomo
Cantina: Sì
Ascensore: -
Giardino o terrazza abitabile: Sì
Spazio esterno: Sì
Stato: -
Garage: Sì
Posto auto: Sì
Classe energetica: F
Piano: 2
Camere matrimoniali: 3
Camere singole: 1
 

Richiedi maggiori info

Contatto diretto:
LU3 - Studio Capannori D.i.
Capannori
Tel. 0583936228
Richiedi info con Whatsapp


Altrimenti compila il form:

Informativa sulla privacy (ai sensi dell'art.13 D.L. 196/2003)
Si informa che, in base all'art. 7 D.L. 196/03, i dati inseriti saranno utilizzati esclusivamente per l'espletamento del servizio descritto.
Detti dati sono indispensabili per fornire la risposta alla richiesta e quindi, in caso di mancata accettazione della informativa sulla privacy, i dati non saranno inviati.
In ogni momento il cliente può chiedere la visione, la cancellazione, l'integrazione, la rettifica e la modifica dei dati sopra forniti.
I dati inviati sono trattati presso TosNet S.r.l. mentre il titolare del trattamento è MEDIATORI GROUP S.r.l. .
Mitros

Un team di geometri al Tuo servizio

I nostri servizi:

• Consulenze gratuite
• Progettazione
• Relazione tecnica
…e tanto altro ancora

Vai al sito
Mitros

Per le Tue ristrutturazioni immobiliari

Avvicina domanda ed offerta nel campo delle ristrutturazioni Immobiliari

• Selezioniamo le migliori Imprese e i migliori Artigiani sul territorio
• Aziende e Artigiani che mettonoa disposizione la loro esperienza e professionalità

Vai al sito
  • Vendita
  • Affitti
  • Lavora con noi
  • Dove siamo
  • Blog
  • Privacy policy
  • Perché sceglierci
  • Utente finale
  • Agente immobiliare
Seguici su: facebbok instagram linkedin
MEDIATORI GROUP S.r.l. Via Francesco Ferrucci 203/e - 59100 Prato (PO) | P.IVA 02351460973 | Tel. +39 0574 597350 | info@mediatorigroup.it | Autorizzazioni Cookie
Sito realizzato da TosNet.it
MEDIATORI GROUP S.r.l.
Via Francesco Ferrucci 203/e - 59100 Prato (PO)
P.IVA 02351460973
Tel. +39 0574 597350 info@mediatorigroup.it
Autorizzazioni Cookie
Seguici su: facebbok instagram linkedin
Sito realizzato da TosNet.it