AREA RISERVATA
Mail info@mediatorigroup.it Seguici su: facebook instagram linkedin
Mediatori Group
LA SCELTA GIUSTA PER LA TUA CASA
  • Vendita
  • Affitti
  • PERCHÉ SCEGLIERCI
  • Blog
  • Lavora con noi
  • Dove siamo
  • Agente immobiliare
  • Cookie e privacy
  • AREA RISERVATA
Percorso di ricerca Toscana FI Fucecchio

Appartamento

104 Mq | 4 locali

125.000,00 €

Descrizione immobile

CODICE ANNUNCIO 105
In zona stadio, appartamento al terzo ed ultimo piano con due balconi, cantina e piccolo orto.

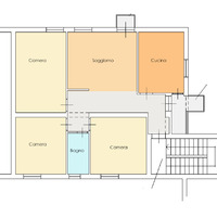
Dalle scale arriviamo al terzo ed ultimo piano dove abbiamo l'ingresso dell'appartamento.

Accediamo in un disimpegno dove difronte c'è la cucina e sulla sinistra abbiamo la sala.

La cucina è abitabile

La sala è ampia e luminosa grazie alla presenza di una finestra e di una portafinestra che ci fa accedere su un balcone.

La zona notte ha tre camere e il bagno.

Delle tre camere due sono matrimoniali mentre la terza è doppia.

Il bagno è finestrato e corredato di doccia.

Nel disimpegno d'ingresso c'è un secondo balcone e un piccolo ripostiglio ad uso lavanderia.

A completare la proprietà c'è una cantina al piano terra e un piccolo giardino esclusivo ad uso orto.

L'appartamento è stato costruito negli anni settanta e sono stati fatti dei lavori di manutenzione che rendono l'appartamento in buono stato.

Fissa un appuntamento per vedere l'immobile chiamando al 0571245503, mandando un messaggio whatsapp al 3703742598 o inviando un email a fi2@mediatorigroup.it

Dettagli
Riferimento annuncio: V344822
Regione: Toscana
Città: Fucecchio Fucecchio
Provincia: Firenze
Superficie: 104 Mq
Contratto: Vendita
Locali: 4
Cucina abitabile: Sì
Soggiorno: Sì
Bagni: 1
Riscaldamento: Autonomo
Cantina: Sì
Ascensore: -
Giardino o terrazza abitabile: Sì
Spazio esterno: Sì
Stato: Ristrutturato
Garage: -
Posto auto: -
Classe energetica: g
Piano: 2
Camere matrimoniali: 2
Camere singole: 1
 

Richiedi maggiori info

Contatto diretto:
FI2 - Studio Play D.i.
Fucecchio
Tel. 0571245503
Richiedi info con Whatsapp


Altrimenti compila il form:

Informativa sulla privacy (ai sensi dell'art.13 D.L. 196/2003)
Si informa che, in base all'art. 7 D.L. 196/03, i dati inseriti saranno utilizzati esclusivamente per l'espletamento del servizio descritto.
Detti dati sono indispensabili per fornire la risposta alla richiesta e quindi, in caso di mancata accettazione della informativa sulla privacy, i dati non saranno inviati.
In ogni momento il cliente può chiedere la visione, la cancellazione, l'integrazione, la rettifica e la modifica dei dati sopra forniti.
I dati inviati sono trattati presso TosNet S.r.l. mentre il titolare del trattamento è MEDIATORI GROUP S.r.l. .
Mitros

Un team di geometri al Tuo servizio

I nostri servizi:

• Consulenze gratuite
• Progettazione
• Relazione tecnica
…e tanto altro ancora

Vai al sito
Mitros

Per le Tue ristrutturazioni immobiliari

Avvicina domanda ed offerta nel campo delle ristrutturazioni Immobiliari

• Selezioniamo le migliori Imprese e i migliori Artigiani sul territorio
• Aziende e Artigiani che mettonoa disposizione la loro esperienza e professionalità

Vai al sito
  • Vendita
  • Affitti
  • Lavora con noi
  • Dove siamo
  • Blog
  • Privacy policy
  • Perché sceglierci
  • Utente finale
  • Agente immobiliare
Seguici su: facebbok instagram linkedin
MEDIATORI GROUP S.r.l. Via Francesco Ferrucci 203/e - 59100 Prato (PO) | P.IVA 02351460973 | Tel. +39 0574 597350 | info@mediatorigroup.it | Autorizzazioni Cookie
Sito realizzato da TosNet.it
MEDIATORI GROUP S.r.l.
Via Francesco Ferrucci 203/e - 59100 Prato (PO)
P.IVA 02351460973
Tel. +39 0574 597350 info@mediatorigroup.it
Autorizzazioni Cookie
Seguici su: facebbok instagram linkedin
Sito realizzato da TosNet.it