AREA RISERVATA
Mail info@mediatorigroup.it Seguici su: facebook instagram linkedin
Mediatori Group
LA SCELTA GIUSTA PER LA TUA CASA
  • Vendita
  • Affitti
  • PERCHÉ SCEGLIERCI
  • Blog
  • Lavora con noi
  • Dove siamo
  • Agente immobiliare
  • Cookie e privacy
  • AREA RISERVATA
Percorso di ricerca Toscana PT Pistoia

Terratetto

240 Mq | 5 locali

255.000,00 €

Descrizione immobile

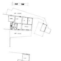
Pistoia Ovest – Via dello Spartitoio | Terratetto di 240 mq libero su 3 lati con giardino di 1.000 mq e 3 garage

In contesto tranquillo e riservato, proponiamo in vendita terratetto caratterizzato da ampie metrature e grande potenziale abitativo.

L’immobile si sviluppa su due livelli per una superficie complessiva di circa 240 mq, con giardino esclusivo fronte/retro di circa 1.000 mq, ideale per chi desidera privacy e spazi esterni vivibili.

La proprietà dispone di due ingressi indipendenti, elemento che la rende particolarmente interessante anche per la realizzazione di due unità abitative distinte.

Piano Terra
Dal primo ingresso si accede ad un ampio disimpegno con scala per il piano superiore, cucina con accesso diretto al giardino sul retro e soggiorno.
Dal secondo ingresso, posto lateralmente, troviamo un disimpegno che collega cucina, camera e bagno, configurando uno spazio già predisposto per un comodo bilocale indipendente.

Piano Primo
La zona notte si compone di tre camere matrimoniali, ampie e luminose, e bagno finestrato con vasca.

Completano la proprietà:

tre garage esterni
giardino esclusivo su più lati

Il tetto è stato rifatto nel 2018. L’immobile necessita di lavori di ristrutturazione (pavimentazioni, infissi e impianti), offrendo la possibilità di personalizzare gli ambienti.

Grazie alla disposizione interna e ai due ingressi, la soluzione si presta sia come abitazione unifamiliare di ampia metratura, sia come soluzione bifamiliare con interventi minimi.

Ideale per famiglie numerose, genitori e figli o per chi desidera indipendenza e ampi spazi.

Per maggiori informazioni contattare l'agenzia al numero 0573 1603017 oppure tramite e-mail all’indirizzo pt1@mediatorigroup.it

Dettagli
Riferimento annuncio: V349501
Regione: Toscana
Città: Pistoia Pt Ovest
Provincia: Pistoia
Superficie: 240 Mq
Contratto: Vendita
Locali: 5
Cucina abitabile: Sì
Soggiorno: Sì
Bagni: 2
Riscaldamento: Autonomo
Cantina: -
Ascensore: -
Giardino o terrazza abitabile: Sì
Spazio esterno: Sì
Stato: Da rimodernare
Garage: Sì
Posto auto: Sì
Classe energetica: G
Camere matrimoniali: 4
 

Richiedi maggiori info

Contatto diretto:
PT1 - St. Pistoia Ovest s.a.s.
Pistoia
Tel. 05731603017
Richiedi info con Whatsapp


Altrimenti compila il form:

Informativa sulla privacy (ai sensi dell'art.13 D.L. 196/2003)
Si informa che, in base all'art. 7 D.L. 196/03, i dati inseriti saranno utilizzati esclusivamente per l'espletamento del servizio descritto.
Detti dati sono indispensabili per fornire la risposta alla richiesta e quindi, in caso di mancata accettazione della informativa sulla privacy, i dati non saranno inviati.
In ogni momento il cliente può chiedere la visione, la cancellazione, l'integrazione, la rettifica e la modifica dei dati sopra forniti.
I dati inviati sono trattati presso TosNet S.r.l. mentre il titolare del trattamento è MEDIATORI GROUP S.r.l. .
Mitros

Un team di geometri al Tuo servizio

I nostri servizi:

• Consulenze gratuite
• Progettazione
• Relazione tecnica
…e tanto altro ancora

Vai al sito
Mitros

Per le Tue ristrutturazioni immobiliari

Avvicina domanda ed offerta nel campo delle ristrutturazioni Immobiliari

• Selezioniamo le migliori Imprese e i migliori Artigiani sul territorio
• Aziende e Artigiani che mettonoa disposizione la loro esperienza e professionalità

Vai al sito
  • Vendita
  • Affitti
  • Lavora con noi
  • Dove siamo
  • Blog
  • Privacy policy
  • Perché sceglierci
  • Utente finale
  • Agente immobiliare
Seguici su: facebbok instagram linkedin
MEDIATORI GROUP S.r.l. Via Francesco Ferrucci 203/e - 59100 Prato (PO) | P.IVA 02351460973 | Tel. +39 0574 597350 | info@mediatorigroup.it | Autorizzazioni Cookie
Sito realizzato da TosNet.it
MEDIATORI GROUP S.r.l.
Via Francesco Ferrucci 203/e - 59100 Prato (PO)
P.IVA 02351460973
Tel. +39 0574 597350 info@mediatorigroup.it
Autorizzazioni Cookie
Seguici su: facebbok instagram linkedin
Sito realizzato da TosNet.it